ART Special Sample 3

ART Special Sample 3

Maker HUF HAUS
Delivers Europe, UK
Type Modular home
From
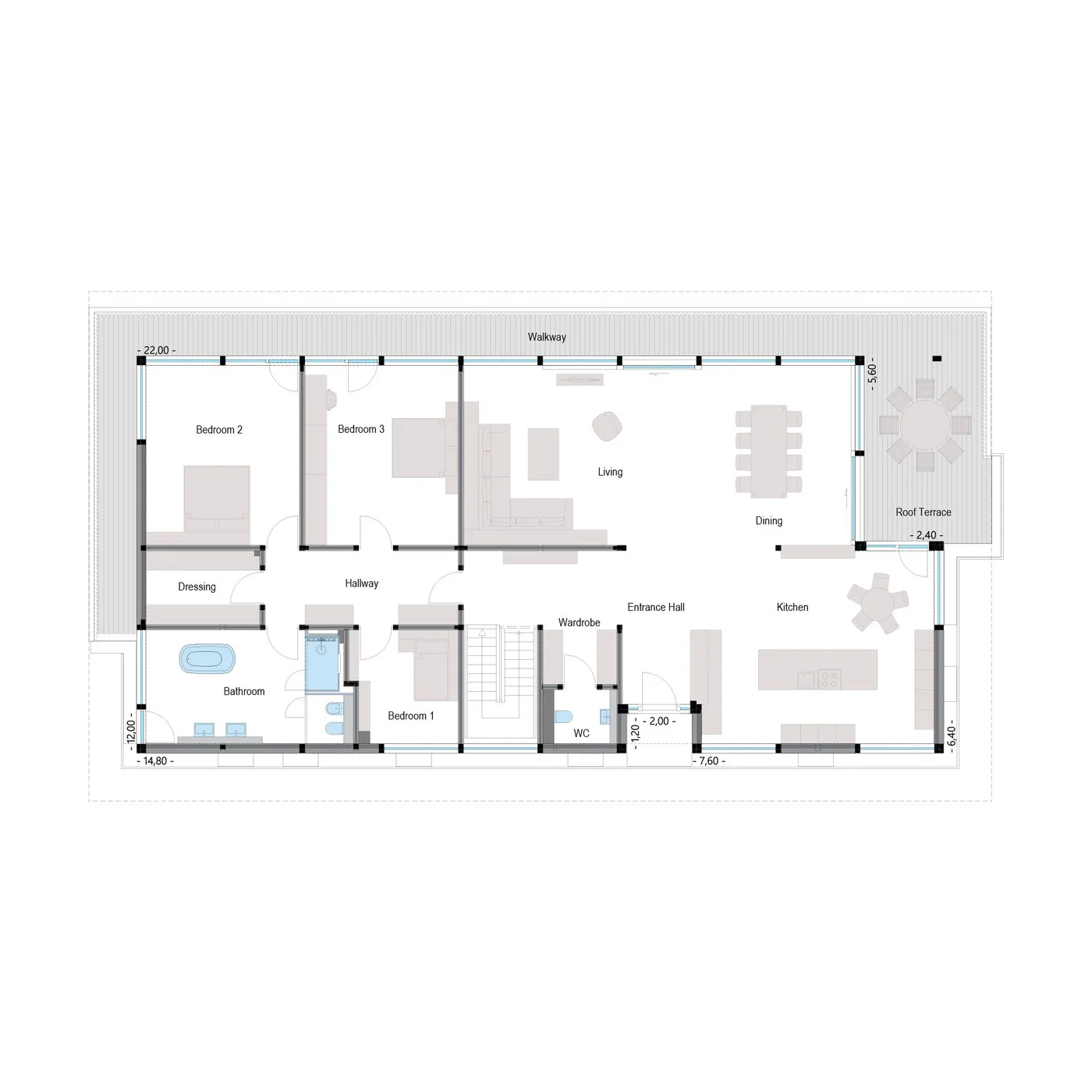
276.96m²
Floor Area
3 / 2
Bed / Bath
24.4m x 12.0m
Dimensions
Two Storey
Floors

About This Home

The ART Special series represents HUF HAUS's most expansive and architecturally ambitious range. Sample 3 covers 277 m² of floor space, with a flat roof, post-and-beam construction, and extensive glazed facades across what is a very large three-bedroom plan. The flat roof creates multiple terrace and outdoor living opportunities, and at this scale the design can accommodate generous individual rooms alongside shared living spaces without compromise.

German engineering standards apply throughout, with a heat pump system, triple glazing, and high-performance insulation standard. The flat roof is well suited to solar panel or green roof integration for those pursuing maximum environmental performance. Interior customisation and architectural consultation are available as standard in the ART Special range.

At this footprint, the home suits buyers looking for a substantial, architecturally led property. UK compliance is confirmed per project.

What We Love

The ART Special range is where HUF HAUS's post-and-beam system gets to work at full scale. At 277 m², there's room to design without the trade-offs that come with more constrained footprints.

Construction

Build System Timber Frame (Post-and-beam construction)
Floors Two Storey
Roof Type Flat roof
Exterior Finish Mixed (Glass and architectural elements)
Foundation Concrete Slab (typical for HUF HAUS)

Energy and Sustainability

Energy Rating High energy efficiency rating (specific rating not provided)
Insulation Multi-layer
Glazing Triple Glazed (Standard for HUF HAUS)
Heating Heat pump
Sustainable Materials Certified and eco-friendly materials

Key Features

Timber frame, Two-story configurations, Flat roof, Mixed cladding materials glass and architectural elements, Pre-prepared foundation required concrete slab, Energy-efficient heating system heat pump, Double- or triple-glazed windows and doors triple glazed, Airtight construction for improved energy efficiency, Meets UK and German Building Regulations, Sustainable, eco-friendly materials, Smart home integration, Contemporary bathroom design with high-spec fittings, Large windows for natural light and ventilation.

Delivery and Compliance

Building Codes Meets UK and German building regulations

Floor Plan

ART Special Sample 3 floor plan

More from HUF HAUS

All HUF HAUS homes